About
This is one of our FAVORITE designs to date, located in Foundry Park at Three Oaks, the exclusive community that hosted Homearama 2025. This Classic Living Homes custom-built home boasts an elegant exterior with a thoughtfully designed interior. Spanning four stories and 4,124 sqft, this 4-bedroom, 4.5-bath home offers unparalleled luxury and convenience. While this home is super spacious, an elevator ensures effortless access to all floors. The third floor is home to the generous primary suite, a second suite, and a laundry room. On the 4th floor, you'll find a media loft, an additional suite, an office, and access to the rooftop deck, complete with a fireplace. Located in vibrant Oakley, this home is just blocks from the lively restaurants, bars, and shops along Madison Rd and minutes from the exciting amenities at Factory 52. This is urban living at its finest AND tax abatement eligible!
floor plans
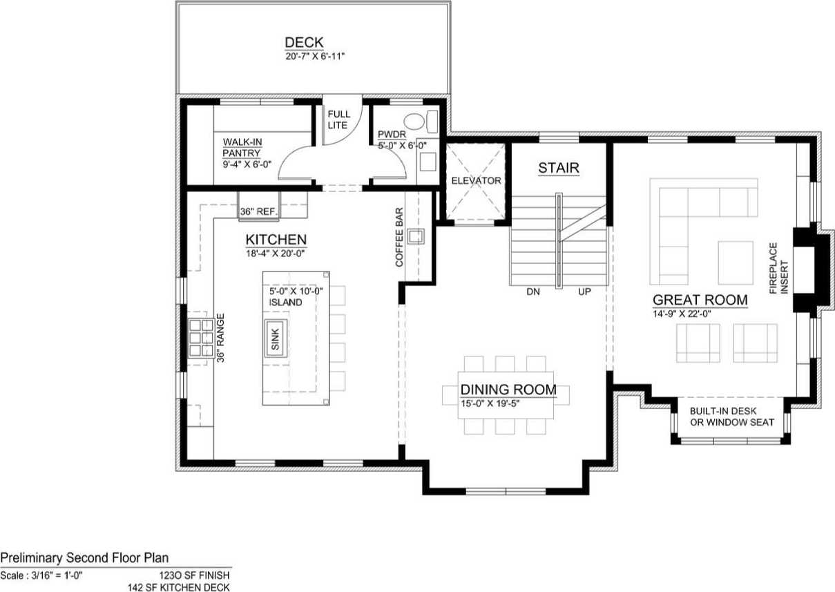
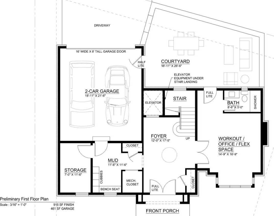
This luxurious four-story home in Oakley's Foundry Park features an elevator for easy access across its 4,124 sq ft layout, including four bedrooms and five bathrooms. The entry level offers a spacious 18x12 foyer leading to a rear-entry two-car garage, while the second floor hosts an expansive 22x15 living room and a gourmet 20x18 kitchen with walkout access. Ascending to the third floor, you'll find the 17x15 primary suite with an en-suite bath and walk-in closet, alongside a 15x12 second bedroom with its own bath and a convenient 9x8 laundry room. The top floor provides versatile spaces like a 10x8 study, 21x13 family room or media loft, and an additional bedroom, culminating in a rooftop deck with a cozy fireplace for outdoor entertaining.
gallery
About
next steps

